1 : 2025/10/04(土) 10:12:23.60 ID:QT7BpBF50
2 : 2025/10/04(土) 10:12:35.77 ID:QT7BpBF50
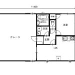
こういうのでいいんだよ
117 : 2025/10/04(土) 10:39:53.22 ID:+SsjVdcc0
>>2
680円でなんとかならんか?
680円でなんとかならんか?
3 : 2025/10/04(土) 10:12:47.82 ID:QT7BpBF50
ここで終活しよう
4 : 2025/10/04(土) 10:12:59.67 ID:mJLlikgP0
土地代込み?
9 : 2025/10/04(土) 10:14:17.53 ID:VI+6enNYa
>>4
んなわけない
んなわけない
18 : 2025/10/04(土) 10:16:04.82 ID:SYw/zbGm0
>>4
基礎工事も別でしょう
基礎工事も別でしょう
5 : 2025/10/04(土) 10:13:22.94 ID:hGDu1zIy0
断熱ゴミ
アチアチ粗大ごみ
アチアチ粗大ごみ
6 : 2025/10/04(土) 10:13:56.36 ID:2WPFgBpc0
犬小屋ならアリか
8 : 2025/10/04(土) 10:14:13.56 ID:M9Y5yk6V0
車庫でキャンプとバーベキューも出来るな
10 : 2025/10/04(土) 10:14:39.56 ID:VAj6wZkT0
独り身ならありか?
17 : 2025/10/04(土) 10:15:32.25 ID:VI+6enNYa
>>10
独身で車2台とめられる駐車場いらんだろ
独身で車2台とめられる駐車場いらんだろ
41 : 2025/10/04(土) 10:21:01.93 ID:JnaY8ckv0
>>17
ガレージにバカ正直に車を置くバカ
ガレージにバカ正直に車を置くバカ
11 : 2025/10/04(土) 10:14:58.78 ID:kgAiI6WF0
コダーテいいね
13 : 2025/10/04(土) 10:15:07.04 ID:KC+mBwMe0
屋上に上がれるかどうかで評価が変わる
29 : 2025/10/04(土) 10:18:37.84 ID:SYw/zbGm0
>>13
こういう倉庫屋で倉庫建てると、太陽光発電屋に屋根の上貸せば賃料貰えますよって勧められる。太陽光の工事費は業者負担でただ屋根の上を貸すだけ
こういう倉庫屋で倉庫建てると、太陽光発電屋に屋根の上貸せば賃料貰えますよって勧められる。太陽光の工事費は業者負担でただ屋根の上を貸すだけ
110 : 2025/10/04(土) 10:37:49.43 ID:GrwyDAE40
>>29
そういうの聞いた事あっていいじゃんと思ったけど罠があった気がする何かは忘れたが
そういうの聞いた事あっていいじゃんと思ったけど罠があった気がする何かは忘れたが
14 : 2025/10/04(土) 10:15:17.62 ID:rsiLXHXF0
ガレージいらん
15 : 2025/10/04(土) 10:15:23.05 ID:al21NnDQ0
これで土地代と外構費と諸経費込みなら今すぐ買うんだけど、まさか本体だけってオチじゃないよな
19 : 2025/10/04(土) 10:16:06.41 ID:KC+mBwMe0
ガレージはテント置いて民泊にするよ
20 : 2025/10/04(土) 10:16:14.95 ID:zQedyxr10
木更津なんだがこの手のガレージハウスがめっちゃ増えてるわ
22 : 2025/10/04(土) 10:16:49.06 ID:9vpolCrZ0
ここでBBQしようず
23 : 2025/10/04(土) 10:16:59.29 ID:ECh1Fmyd0
シャッター付けたい
24 : 2025/10/04(土) 10:17:03.71 ID:nBZPuI4O0
俺550万の家のチラシ見て買いに行ったら諸経費半端なくて諦めたことある
これも多分そういうのだと思う
これも多分そういうのだと思う
30 : 2025/10/04(土) 10:18:51.94 ID:XGUWamc/0
>>24
総額でいくらになったの?
総額でいくらになったの?
37 : 2025/10/04(土) 10:20:17.32 ID:R/2IvxaM0
>>30
土地代別で2000万
土地代込みで5000万だった
土地代別で2000万
土地代込みで5000万だった
45 : 2025/10/04(土) 10:21:18.23 ID:sAVfp85S0
>>37
詐欺広告じゃん!
詐欺広告じゃん!
88 : 2025/10/04(土) 10:31:57.51 ID:Y2NEIduU0
>>37
嫌なこと聞いたわ…
90 : 2025/10/04(土) 10:32:17.83 ID:f6ia+zR10
>>37
諸経費2450万!?550万表示でそれは酷いな
諸経費2450万!?550万表示でそれは酷いな
26 : 2025/10/04(土) 10:18:06.78 ID:UE7Go3ID0
雨音でノイローゼになりそう
27 : 2025/10/04(土) 10:18:17.63 ID:QPQi/3Kp0
電気水道もこの料金内で接続してくれるん?
28 : 2025/10/04(土) 10:18:23.73 ID:NsgdamCQ0
冷蔵庫の位置おかしいし風呂に入れないじゃん
31 : 2025/10/04(土) 10:18:53.26 ID:ZIJawhXn0
ガレージにシャッターを付けて冬でも作業出来る様にしたい
チャリと水上バイクを置くのに良さそう
賃貸のガレージハウスを考えたけど安い土地にこれを建てた方が良いか
チャリと水上バイクを置くのに良さそう
賃貸のガレージハウスを考えたけど安い土地にこれを建てた方が良いか
32 : 2025/10/04(土) 10:19:11.24 ID:7sVDqg0JM
ガルバニウム鋼板軒無し貧民住宅
112 : 2025/10/04(土) 10:38:07.95 ID:So79R3Nw0
>>32
無駄に税金取られるだけだからな
無駄に税金取られるだけだからな
33 : 2025/10/04(土) 10:19:20.66 ID:uiYZ2iiN0
車好きしか無理だろ
34 : 2025/10/04(土) 10:19:32.44 ID:gCl23eaA0
車ないからなんかお店でもしようかな
36 : 2025/10/04(土) 10:20:08.44 ID:8rFeGRJm0
ガレージでかすぎひん?
何台車停めるつもりなんよ
何台車停めるつもりなんよ
78 : 2025/10/04(土) 10:29:10.61 ID:2IaTYxOr0
>>36
こういうガレージハウス建てるヤツがクルマだけ停めると思う?
作業スペースやくつろぎスペースも欲しいだろ
こういうガレージハウス建てるヤツがクルマだけ停めると思う?
作業スペースやくつろぎスペースも欲しいだろ
38 : 2025/10/04(土) 10:20:18.71 ID:C6gftk7B0
自分用に欲しいな
39 : 2025/10/04(土) 10:20:38.83 ID:4mAD+zMu0
何年持つん?家の寿命
40 : 2025/10/04(土) 10:20:44.20 ID:C6gftk7B0
家の横の土地買って建てたいわ
42 : 2025/10/04(土) 10:21:05.16 ID:k/HLsuCTM
これにクローゼットと物置部屋を追加してほしい
43 : 2025/10/04(土) 10:21:14.08 ID:ZW3G8nPc0
デカ目の地震か台風が来ただけで倒壊しそう
60 : 2025/10/04(土) 10:24:13.31 ID:SYw/zbGm0
>>43
上に重いものが何も無いから地震には糞強いだろ
台風は窓やシャッターが壊れて中に何故が吹き込むようになったら壁の鋼板持ってかれる
上に重いものが何も無いから地震には糞強いだろ
台風は窓やシャッターが壊れて中に何故が吹き込むようになったら壁の鋼板持ってかれる
65 : 2025/10/04(土) 10:25:29.29 ID:sAVfp85S0
>>60
シャッター無いから台風での屋根の吹き上げもヤバそうなんだよな
シャッター無いから台風での屋根の吹き上げもヤバそうなんだよな
44 : 2025/10/04(土) 10:21:17.85 ID:u1pu6DVk0
激安の市街化調整区域を買ってトレーラーハウスを置きたい
46 : 2025/10/04(土) 10:21:55.45 ID:+DdSpC6DH
戸建=コダーテ
47 : 2025/10/04(土) 10:22:04.90 ID:KoTRrDl80
コスパと機能性を求めた末の住居の完成形
48 : 2025/10/04(土) 10:22:07.78 ID:3/d9YrfC0
実家の向かいにある何の活用もしてねー空き地に丁度いいなこれ
49 : 2025/10/04(土) 10:22:20.06 ID:A4nA3zFr0
シャッターは?
50 : 2025/10/04(土) 10:22:33.96 ID:nvH3y7KQM
倉庫に住んでます感
52 : 2025/10/04(土) 10:23:01.64 ID:3oBV5oGaH
これやると税金上がりそう
54 : 2025/10/04(土) 10:23:08.36 ID:gjRZRDsG0
住むのはきついな
55 : 2025/10/04(土) 10:23:27.77 ID:ZVoMYIJM0
いいね
こういうガレージハウスでバイクいじりでもしながら独り余生を過ごしたい
こういうガレージハウスでバイクいじりでもしながら独り余生を過ごしたい
57 : 2025/10/04(土) 10:23:50.74 ID:bLHj35bN0
ただの倉庫じゃん
59 : 2025/10/04(土) 10:24:11.86 ID:SILIX6VZ0
台風に耐えれるのかこれ
61 : 2025/10/04(土) 10:24:26.92 ID:0FtryKFy0
めちゃくちゃいいじゃん、タダで土地確保してこれ建てれば安くすむ
63 : 2025/10/04(土) 10:25:23.30 ID:VI+6enNYa
おそらく本体価格より電気やガスや上下水道引き込む工事の方が高くなる
64 : 2025/10/04(土) 10:25:25.89 ID:vQpfUy4O0
電動シャッター付けたら1千万ぐらい?
66 : 2025/10/04(土) 10:25:43.10 ID:3oBV5oGaH
住居の方は高くして欲しいところだな
67 : 2025/10/04(土) 10:25:57.00 ID:g8bZrEVY0
ドラゴンボールの家でいいからもっと安くしろ
68 : 2025/10/04(土) 10:26:04.02 ID:NYx0q0Bu0
バイク乗るようになったらガレージ欲しくてしゃあない
カバーかけて地球ロックしてってのが毎回発生するのがダルい
ガレージあったら車庫に入れて終わるのにと
こんなんあったら1日中カスタムとか出来ていいけど
流石にこの家は住むのに部屋少なすぎんか
カバーかけて地球ロックしてってのが毎回発生するのがダルい
ガレージあったら車庫に入れて終わるのにと
こんなんあったら1日中カスタムとか出来ていいけど
流石にこの家は住むのに部屋少なすぎんか
92 : 2025/10/04(土) 10:33:11.03 ID:ueCfiZgU0
>>68
サスのOHとかシーズンオフにエンジン降ろして全体やる時とかだと作業出来て仕掛かりをそのまま置いとける部屋欲しくなるから結局全部バイク部屋になるオカン
サスのOHとかシーズンオフにエンジン降ろして全体やる時とかだと作業出来て仕掛かりをそのまま置いとける部屋欲しくなるから結局全部バイク部屋になるオカン
69 : 2025/10/04(土) 10:26:58.81 ID:ukSGJ4Yt0
基礎が低いというかないように見えるから少しの洪水で家の中に水が入ってきそうで怖い
70 : 2025/10/04(土) 10:27:21.14 ID:hcyPQOid0
ガレージ監視所
71 : 2025/10/04(土) 10:27:22.67 ID:Z/oAVmcb0
ガレージをちょっと詰めて
大きい収納あった方がいいな
大きい収納あった方がいいな
72 : 2025/10/04(土) 10:27:58.86 ID:Xo5qVLZJ0
プレハブ小屋じゃん
73 : 2025/10/04(土) 10:28:20.69 ID:OZ0FInARH
シャッター付けて中でBBQや筋トレしたい
75 : 2025/10/04(土) 10:28:50.13 ID:PfyRu47q0
コンセプトはいいけど家部分は2階に欲しいんだよな
81 : 2025/10/04(土) 10:30:22.01 ID:ukSGJ4Yt0
>>75
そういうのを求める人は普通にガレージハウス建てるやろ
そういうのを求める人は普通にガレージハウス建てるやろ
76 : 2025/10/04(土) 10:28:51.60 ID:l+mlXVqG0
中古車屋の事務所にいいかもしれん
77 : 2025/10/04(土) 10:29:01.47 ID:gZ5k1lPV0
排気ガスの換気相当気を使わないと詰むぞ
家ん中ガス臭くなるやつ
家ん中ガス臭くなるやつ
79 : 2025/10/04(土) 10:29:47.25 ID:Y2NEIduU0
おれこれでいいや
80 : 2025/10/04(土) 10:30:04.00 ID:J5gIiGHd0
ガレージで焼肉してもいいんか!?
82 : 2025/10/04(土) 10:30:29.53 ID:S1CkvM2U0
シャッター無しで何が守れるんだよ
83 : 2025/10/04(土) 10:30:51.29 ID:cXM4lK+x0
土地が安い僻地に建てるんだからガレージが必要なのか
84 : 2025/10/04(土) 10:31:08.16 ID:ueCfiZgU0
屋根と壁の断熱材とかOPで追加するのとシャッター追加で1000万円ぐらいかね
コレなら良いと思うわ
コレなら良いと思うわ
85 : 2025/10/04(土) 10:31:16.26 ID:Zgk9cUIt0
完全に独り者の男をターゲットにしてるな
どれだけの注文があって建てたのか1年後に報告してほしいわ
どれだけの注文があって建てたのか1年後に報告してほしいわ
86 : 2025/10/04(土) 10:31:23.75 ID:En/G1fzp0
半分は作業場だな。男のロマン
89 : 2025/10/04(土) 10:31:57.64 ID:ZPfXfA1u0
田舎で金持ってるお爺ちゃんがちょっと遠い畑見るために建てる家みたい
93 : 2025/10/04(土) 10:34:38.45 ID:QPQi/3Kp0
3Dプリンター住宅革命はよ起きてほしい
109 : 2025/10/04(土) 10:37:32.93 ID:FKdYKSMM0
>>93
3Dプリンタ住宅って
セメントをウ●コ💩みたいにブリュブリュ重ねていくだけだろ?
そんなに画期的な技術だとは思えんな
3Dプリンタ住宅って
セメントをウ●コ💩みたいにブリュブリュ重ねていくだけだろ?
そんなに画期的な技術だとは思えんな
121 : 2025/10/04(土) 10:42:53.58 ID:QPQi/3Kp0
>>109
家のクオリティを上げる技術じゃなくて、鉄筋コンクリート造のクオリティのまま人件費を無くす技術だからな
家のクオリティを上げる技術じゃなくて、鉄筋コンクリート造のクオリティのまま人件費を無くす技術だからな
94 : 2025/10/04(土) 10:35:00.81 ID:KTnSugKm0
ガレージの部分いらないから半額にして
95 : 2025/10/04(土) 10:35:02.23 ID:FKdYKSMM0
名前が気に入らない
97 : 2025/10/04(土) 10:35:10.77 ID:jJgkVQS3H
ここにフェラーリとポルシェを2台並べて悦に入るんですか?
98 : 2025/10/04(土) 10:35:11.86 ID:mnTWEvED0
2柱リフト込み800万円なら買いたい
99 : 2025/10/04(土) 10:35:37.20 ID:Q7nPVwxr0
風呂どっから入るんだよ
100 : 2025/10/04(土) 10:36:02.54 ID:Jv6B2gEt0
むしろガレージがじゃま
そこで日光入れて農作物作れないと餓死する
そこで日光入れて農作物作れないと餓死する
101 : 2025/10/04(土) 10:36:02.60 ID:Xy7gaX670
天井=屋根になってね?雨の音がそのまま入らね?
102 : 2025/10/04(土) 10:36:24.93 ID:6aa8Oa2u0
安倍さーん!
103 : 2025/10/04(土) 10:36:27.19 ID:k+Nertcx0
ええやん
バリアフリー化したとしても1,000万円で行けそうやな
バリアフリー化したとしても1,000万円で行けそうやな
104 : 2025/10/04(土) 10:36:39.00 ID:NIYNGAfk0
家の見積もりするとわかるけど、倍に膨れ上がるんよ
給排水仮設費用地盤調査地盤改良登記費用設計料
とかなんだかんだ上乗せされる
給排水仮設費用地盤調査地盤改良登記費用設計料
とかなんだかんだ上乗せされる
105 : 2025/10/04(土) 10:36:44.28 ID:mnTWEvED0
よく見たら収納無さすぎ
106 : 2025/10/04(土) 10:36:45.47 ID:AhBcCsOF0
バーベキューしてみたり筋トレのパワーラック置いてみたり、くつろぎスペース作ったり
車置く以外に色々使えそうだから隠れ家として是非欲しい
車置く以外に色々使えそうだから隠れ家として是非欲しい
107 : 2025/10/04(土) 10:36:46.51 ID:huDx+1GT0
むっちゃええやん
シャッターは?
シャッターは?
108 : 2025/10/04(土) 10:36:59.55 ID:F0Ba/9WH0
フェラーリと軽自動車置きたい
113 : 2025/10/04(土) 10:38:29.02 ID:kCzA2NJ30
雨の日でもBBQできるじゃん
116 : 2025/10/04(土) 10:39:24.74 ID:mnTWEvED0
ガレージの壁に⚽サッカーボール当てて遊んでたら隣のババアに晒されるぞ
118 : 2025/10/04(土) 10:40:02.57 ID:cXM4lK+x0
これからは自分で手入れ出来る建物の方が安くなる
119 : 2025/10/04(土) 10:40:44.50 ID:LRJ309NO0
電気ガス上下水道引き込み接続費用でぼったくられそう
120 : 2025/10/04(土) 10:42:07.89 ID:pWdqCu620
実家の庭が広くて建てられるなら倍ぐらいの値段でいけるけどな
123 : 2025/10/04(土) 10:43:54.37 ID:bfPvvx4e0
断熱が気になる
124 : 2025/10/04(土) 10:44:43.32 ID:evJwNMgY0
賃貸でよくね
125 : 2025/10/04(土) 10:46:25.03 ID:3A4KFF1xd
別荘ならいいかな
126 : 2025/10/04(土) 10:46:29.71 ID:zhdeCxBO0
風で吹っ飛びそう






コメント